



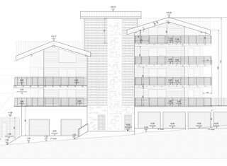
NUOVI FABBRICATI RESIDENZIALI CHALET / Valtournenche - loc. Evette (AO) 2023 - IN FASE DI REALIZZAZIONE
Dati:                                           n. 2 Edifici plurifamiliare su tre e quattro piani 
 
Prestazioni: Progetto architettonico preliminare, definitivo,
esecutivo
(In collaborazione allo studio di progettazione Remidia srl e Marmore srl)
 
L'intervento di ha riguardato la demolizione del fabbricato esistente e la successiva ricostruzione di un nuovo complesso residenziale a ridosso della strada comunale. Il complesso è caratterizzato dalla presenza di un unico corpo scale centrale rivestito in legno che collega i due edifici . Il complesso in fase di approvazione verrà realizzato con materiali di pregio quali legno e pietra a vista e gli spazi interni sono configurati per accogliere appartamenti di alto livello estetico, funzionale ed energetico





NUOVO FABBRICATO RESIDENZIALE PETIT CHALET / Valtournenche - loc. Tourtourouse (IT) 2022 - IN FASE DI REALIZZAZIONE
Dati: Chalet privato su tre piani
mq. Circa 67,00
Prestazioni: Progetto architettonico preliminare, definitivo, esecutivo
                                  (In collaborazione allo studio di progettazione Remidia srl e BiancoNeve)
 
L'intervento di nuova realizzazione riguarda uno chalet di piccole dimensioni su tre livelli. L’edificio in fase di costruzione verrà realizzato con materiali di pregio quali legno e pietra a vista ma dal carattere moderno ed esteticamente accattivante.


NUOVO FABBRICATO RESIDENZIALE CHALET MARMORE / Valtournenche - loc. Tourtourouse (IT) 2022 - IN FASE DI REALIZZAZIONE
Dati: Edificio plurifamiliare su quattro piani
mc. Circa 850,00
Prestazioni: Progetto preliminare, definitivo, esecutivo
                         (In collaborazione allo studio di progettazione Remidia srl e BiancoNeve) 
L'intervento di ristrutturazione ha riguardato la demolizione del fabbricato esistente e la successiva ricostruzione di un nuovo complesso residenziale su sedime esistente. L’edificio in fase di costruzione verrà realizzato con materiali di pregio quali legno e pietra a vista e gli spazi interni sono configurati per accogliere quattro appartamenti di alto livello estetico, funzionale ed energetico ai 4 diversi piani dell’edificio, collegato da corpo scala esterno e ascensore.
RISTRUTTURAZIONE E APERTURA NUOVA ATTIVITA' PINSERIA / Biella (BI) 2022
Dati: Negozio
mq. lordi 80,00
Prestazioni: Progetto preliminare, definitivo, esecutivo,
                                direzione lavori e interior design 
L'intervento riguarda la completa ristrutturazione di un ex panetteria/pasticceria per poter aprire un’attività quale Pinseria assimilabile a pizza al taglio senza somministrazione.Il Committente ha scelto uno stile industriale con toni neutri e scuri tendenti al nero e grigio, in contrasto con materiali caldi quali il legno del bancone e soffitti bianchi. La zona del retro banco vede la presenza di un forno elettrico per la cottura della Pinsa al momento, e nell’area vendita sgabelli alti e mensole in legno per dare possibilità al cliente di fermarsi a consumare in loco. Impianti, cucina, sala vendita, servizio igienico sono stati completamente sostituiti e rifatti. Gli arredi sono nuovi e realizzati su misura come da progetto.




RISTRUTTURAZIONE APPARTAMENTO DA UFFICIO A RESIDENZIALE - P+T / Biella (BI) 2022
Dati: Appartamento privato
mq. lordi 150,00
Prestazioni: Progetto preliminare, definitivo, esecutivo,
                                direzione Lavori, coordinamento per la sicurezza e interior design 
L'intervento riguarda la ristrutturazione edilizia di un appartamento con cambio di destinazione d’uso da ufficio a residenza. Gli ambienti sono ampi e luminosi, i soffitti alti ed i pavimenti in legno. La committenza ha voluto riproporre per casa propria uno stile moderno parigino, ma allo stesso tempo classico ed elegante dai colori neutro e le tinte pastello. La carta da parati della zona giorno è stato elemento per creare i rimandi negli arredi scelti, le boiserie e le porte dello stesso colore tipiche del periodo di realizzazione dell’appartamento collegano tutte le stanze fatta eccezione dei bagno uno in stile moderno e contemporaneo e l’altro in stile vintage/Liberty fortemente voluto dalla committenza.






RISTRUTTURAZIONE CASA A SCHIERA DI MONTAGNA - D+F / Sagliano Micca (BI) 2021
Dati: Casa a schiera
mq. Circa 80,00
Prestazioni: Progetto preliminare, definitivo, esecutivo,
                           direzione Lavori, coordinamento per la sicurezza e interior design 
 
L'intervento riguarda la ristrutturazione edilizia di una piccola villetta a schiera. I piccoli ambienti richiedono al progettista di sfruttare al massimo lo spazio a disposizione ipotizzando anche di ottimizzare gli ambienti attraverso un arredo funzionale e minimale.Il piano terra è stato rivisto completamente atraverso il rifacimento e l’allargamento del bagno esistente e l’apertura di una nuova portafinestra per dare luce e vista sul giardino circostante. Il primo piano anch’esso è stato suddiviso per ricavare una stanza aggiuntiva e un piccolo disimpegno. I materiali e le finiture scelte sono state valutate per allargare visivamente gli spazi rispettando il budget della committenza.
INTERIOR DESIGN VILLA  - G+S / Alice Castello (IT) 2020
 
 
Dati: Villa privata
mq. lordi 200,00
Prestazioni: Interior design
L'intervento riguarda lo studio dell’arredamento interno di alcuni ambienti di una villetta bifamiliare di nuova realizzazione. Il Committente ha richiesto che lo stile fosse moderno e contemporaneo ma allo stesso tempo caldo e confortevole tipico di uno stile più tradizionale, ma con linee e materiali naturali e colori neutri tipici della campagna locale. La zona giorno dagli ampi soffitti in legno è caratterizzata dalla presenza di un grande caminetto a pellet che è stato progettato per integrarsi il più possibile con lo spazio a disposizione ed il gusto della committenza. Occorreva collegare il grande open space della zona giorno con cucina tradizionale di fattura artigianale attraverso materiali e complimenti d’arredo. L’illuminazione scelta oltre a far luce doveva caratterizzare e dare prestigio allo spazio. La camera da letto e la cabina armadio sono state amchesse progettate a gusto della committenza e con elementi realizzati su misura previo esecutivi del progettista.









RISTRUTTURAZIONE FABBRICATO RESID. CHALET VALLET / Valtournenche - Loc. Crepin (IT) 2020-2021
 
 
Dati: Edificio plurifamiliare su quattro piani
mc. Circa 1.100,00
Prestazioni: Progetto preliminare, definitivo, esecutivo
                         (In collaborazione allo studio di progettazione Remidia srl e BiancoNeve) 
L'intervento di ristrutturazione ha riguardato l'intero fabbricato, con un ampliamento laterale ed inserimento corpo scale esterno con ascensore; gli spazi interni sono stati completamente riconfigurati per accogliere quattro appartamenti di alto livello estetico, funzionale ed energetico ai 4 diversi livelli dell’edificio.
Il complesso è in stile montano ed è realizzato interamente in legno e pietra per riprendere il contesto montano tipico della Valle D’Aosta.


RISTRUTTURAZIONE CASA A SCHIERA - S+I / Vische (IT) 2020
Dati: Casa a schiera privata
mq. lordi 300,00
Prestazioni: Progetto preliminare, definitivo, esecutivo
Direzione Lavori, Coordinamento per la sicurezza
       e disposizione arredamento
L'intervento riguarda la ristrutturazione edilizia completa di una casa a schiera tipica di campagna a tre piani fuori terra degli inizi del ‘900 che ha subito nel tempo piccole ristrutturazione di mantenimento. Gli interventi hanno riguardato la realizzazione di un vespaio al piano terra per limitare l’umidità di risalita presente nell’immobile con la ripartizione della zona notte e rifacimento completo del bagno con una grande doccia a nicchia.
Al piano primo allo stesso modo si è cercato pur mantenendo la suddivisione degli spazio esistente, di sanificare gli ambienti e realizzare una nuova cucina dove prima era presente una camera da letto
RISTRUTTURAZIONE CASA A SCHIERA - V+N / Zumaglia (IT) 2020
Dati: Casa a schiera privata
mq. lordi 150,00
Prestazioni: Progetto preliminare, definitivo, esecutivo
Direzione Lavori e arredamento di interni
Intervento di rimodernamento di zona giorno e bagni che ha riguardato il rifacimento completo di pavimentazioni, impianti, arredi e rivestimenti. Al piano terreno è stata elaborata una nuova configurazione spaziale della zona ingresso e soggiorno tramite l'eliminazione di un piccolo ripostiglio e la demolizione di parte degli scalini di collegamento, sostituiti da divisori in legno a tutt'altezza, per ampliare al massimo lo spazio in salotto. La nuova disposizione di arredi e sanitari in cucina e nei due bagni ottimizza le metrature a disposizione con elementi leggeri e finiture moderne.
RISTRUTTURAZIONE CON AMPLIAMENTO VERANDA / Biella-Cossila (IT) 2019
Dati: Casa a schiera privata
mq. lordi 98,00
Prestazioni: Progetto preliminare, definitivo, esecutivo
                                   (In collaborazione con studio di progettazione Remidia srl)
L'intervento riguarda la ristrutturazione di una casa a schiera con ampliamento laterale attraverso l’inserimento di una veranda vetrata in ferro e vetro realizzata su misura.
Le richieste della committenza erano di poter sfruttare anche lo spazio esterno in inverno attraverso una veranda luminosa ed in stile tipicamente inglese in grado di dare carattere alla facciata ed allo spazio altrimenti inutilizzato attraverso un giardino d’inverno.
NUOVA COSTRUZIONE VILLETTA  / Andorno Micca (IT) 2019
 
Dati: Villa privata
mq. lordi 150,00
Prestazioni: Progetto preliminare, definitivo, esecutivo
                                   (In collaborazione con studio di progettazione Remidia srl)
L’intervento ha riguardato la realizzazione di una nuova villetta unifamiliare su appezzamento di terreno circondato da campi.
Le richieste della committenza erano chiare, realizzare un immobile che fosse in grado di non disperde calore bensì attraverso l’utilizzo di una nuova tecnologia quale canapa misto calce di mantenere le dispersioni senza l’utilizzo di impianti tradizionali.
Completa la proprietà garage e piscina.
INTERIOR DESIGN APPARTAMENTO / Ivrea (IT) 2018
 
Dati: Appartamento privato
mq. lordi 100,00
Prestazioni:          Progetto arredo d'interni
L'intervento riguarda lo studio dell’arredamento interno di un alloggio sito in una palazzina di recente realizzazione.
Il Committente ha richiesto un’alloggio in stile moderno e contemporaneo, che impiegasse arredi minimali dal carattere metropolitano e in cui venissero privilegiate forme semplici e colori neutri, come bianco e grigio, e, in aggiunta, i toni del blu.
Sono stati scelti mobili principalmente in legno color bianco opaco, tavolo da pranzo in vetro con gambe in acciaio inox in accordo alle caratteristiche della cucina già presente, stampe e quadri con rappresentazioni metropolitane. 
L'illuminazione riserva i pezzi d'autore più costosi per il soggiorno e la camera da letto, mentre per gli spazi di servizio si è optato per soluzioni più economiche, in accordo alle scelte di budget, ma comunque pregevoli e coerenti con gli spazi.
VILLETTA A SCHIERA / Biella (IT) 2015-2016
Dati: Villetta a schiera su due livelli
mq. lordi 100,00
Prestazioni: Progetto architettonico esecutivo
Progetto arredo d'interni
L'intervento riguarda la progettazione esecutiva degli spazi interni di una piccola villa a schiera di recente realizzazione e relativa scelta dell'arredo interno.
 
Le dimensioni ridotte di un fabbricato rappresentano sempre un'occasione per sfruttare ad hoc ogni spazio che, in questo caso, in accordo alle esigenze del Committente, avrebbe dovuto accogliere 4 locali e 2 bagni costituiti da un arredo in stile nordico, moderno e giovanile.
"Continuità" la parola chiave: nei materiali, nei colori e nelle forme.
Il pavimento in gres 60x60 grigio antracite corre per tutta la casa; i soffitti in legno a vista sono stati verniciati con tinta all'acqua di colore bianco; le pareti tinteggiate con tonalità del grigio chiaro.
La scala in legno a sbalzo diventa un elemento non solo funzionale ma anche e soprattutto di arredo. Il mobilio di tutti i locali (cucina, soggiorno, camere e bagni) mantiene l'utilizzo del legno naturale mentre i complementi come divano, tappeti e lampadari osano toni più accesi del blu vintage e del verde salvia.
RISTRUTTURAZIONE / AMPLIAMENTO FABBRICATO RESID. / Biella (IT) 2015 - 2016
Dati: Edificio plurifamiliare su tre piani
mq. lordi 600,00
Prestazioni: Progetto preliminare, definitivo, esecutivo
                                   (in collaborazione con studio di progettazione Remidia srl)
L'intervento di ristrutturazione ha riguardato l'intero fabbricato; gli spazi interni sono stati completamente riconfigurati per accogliere tre residenze e un grande ufficio al piano secondo.
L'ampliamento in stile moderno si integra ottimamente nel contesto pur esprimendo, con le sue forme e i suoi materiali, una netta differenziazione dalla costruzione storica.
La nuova costruzione, che ospita un ampio soggiorno, è stata realizzata con materiali leggeri in profilati metallici al fine di non sovraccaricare eccessivamente le strutture esistenti sottostanti.
VILLA '900 / Torino  (IT)  -  2015
Dati: Villa unifamiliare su tre piani
mq. lordi 300,00
Prestazioni: Progetto preliminare, definitivo, esecutivo
Direzione Lavori
L'intervento di ristrutturazione consiste nella riconfigurazione degli spazi interni di una grande villa dei primi del 900. Molti elementi originari dell'edificio sono stati mantenuti e riportati alle loro iniziali condizioni, come nel caso delle porte e del camino.
Tramite piccoli accorgimenti e l'utilizzo ragionato del colore anche un ambiente vecchio di oltre un secolo, può rivivere senza stravolgerne gli elementi costitutivi principali e acquisire così un nuovo e moderno aspetto.
Spesso la soluzione vincente è il riuso!
SCUOLA PRIVATA/ Torino (IT) - 2015
Dati: Scuola privata per 50 alunni
mq. lordi 210,00
Prestazioni: Progetto preliminare, definitivo, esecutivo
Direzione Lavori
Coordinamento per la sicurezza
L'immobile oggetto di intervento è situato al piano terreno di un edificio multipiano ed era inizialmente costituito da un locale quasi totalmente sgombero da tramezzature, tranne che per la presenza di un servizio igienico con antibagno. Il progetto ha interessato la modifica dell’assetto planimetrico degli spazi interni finalizzata ad accogliere un nuovo centro di formazione professionale.
In particolare la nuova attività è composta da:
- una zona ingresso e reception con banco per l’accoglienza ed il ritrovo dei clienti;
- una stanza adibita ad archivio documenti e un magazzino di deposito attrezzature;
- un ufficio privato per il responsabile della struttura;
- n°3 aule di cui due per lezioni teoriche ed una predisposta per attività di estetista;
- servizi igienici
CASA-RIFUGIO / Polonia (EU) - 2014
Dati: Abitazione unifamiliare per 4 persone
mq. lordi 30,00
Prestazioni: Progetto preliminare
La committenza ha richiesto la progettazione di una piccola unità abitativa, da utilizzare durante le vacanze estive, che, seppur di dimensioni ridotte, doveva essere in grado di ospitare una coppia con due figli.
Il formato " mini " di questa architettura è stato dettato dalla normativa locale sul contenimento dell'uso del suolo, in base alla quale lo spazio costruito non può superare i 30 mq lordi, con altezza di colmo non superiore a 5 metri e la possibilità di ricavare una piccola tettoia esterna. Se a questo si aggiungono i limiti imposti dalla rigidità climatica della zona, ovvero la necessità di un ottimo isolamento termico e di una struttura solida, lo spazio abitabile all'interno si riduce al minimo.
Da qui l'idea di fondare una parte della casa leggermente al di sotto del piano campagna, in modo tale da poter sfruttare una maggiore altezza interna per un ampio soppalco destinato alla zona notte. Sotto di essa una cucina, un bagno e un soggiorno a doppia altezza con divano letto.